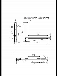
Кронштейны для кондиционера цельнометаллические 40*45 см
Кронштейн для кондиционера наружный — это крепление, предназначенное для безопасной установки и эксплуатации ваших климатических устройств. Конструкция нашего V-Образного кронштейна без сварных швов (цельная) обеспечивает стабильность фиксации и работы кондиционера и сплит системы, снижая вибрации.
Рекомендованная нагрузка на настенный кронштейн 120 кг. Изготовленный из стали 2 мм кронштейн устойчив к внешним воздействиям. Для защиты кронштейна от погодных условий используется оцинковка. Простота в установке, универсальность конфигурации и размеров, подходит для большинства моделей кондиционеров.






